FacebookPixel
EUR
Menu
Envoyer la propriété à un ami
Savoir plus »
captcha
Champs obligatoires *

Maison 4 Chambre(s)

1.075.000 €1.250.000 €
Baisse des prixExclusifOpportunités
Seguir imóvel Receba um alerta quando existir uma Baixa de Preço
Nom
Insérer le code de l'image
captcha
Code
4
4
1
160 m²
217 m²
189 m²
318 m²
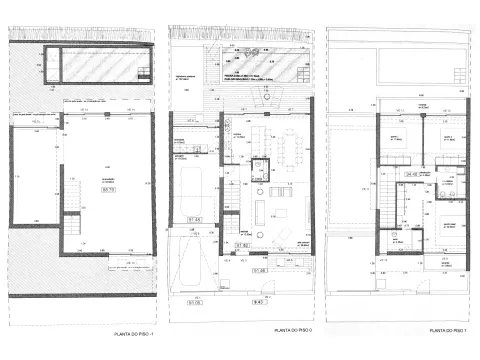
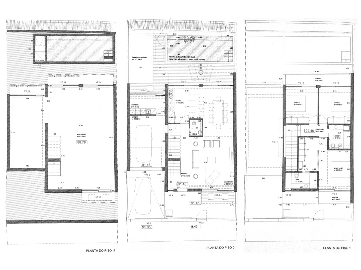
Villa de 4 chambres avec piscine à Porto Salvo.

Description :
En entrant dans la propriété, nous trouvons un petit espace extérieur à l’avant de la maison qui nous mène à la porte d’entrée et au garage fermé à une voiture.
En entrant au rez-de-chaussée de la villa, nous avons un hall d’entrée qui se confond avec le salon en espace ouvert avec la salle à manger et la cuisine américaine entièrement équipée avec un îlot, nous avons également accès à la terrasse avec piscine extérieure. On peut également trouver à cet étage une salle de bain pour les invités, un accès intérieur au garage qui nous mène à la buanderie et à la cuisine pour soutenir la terrasse extérieure.
En montant au premier étage, nous trouvons deux chambres avec balcon et placards intégrés, une salle de bain complète avec baignoire pour soutenir les deux chambres et une suite parentale avec placard et balcon.
Au sous-sol, nous avons la suite parentale avec placard et une pièce à aire ouverte, aux multiples facettes où vous pouvez faire une salle de jeux, une autre suite, un bureau, un salon avec bar, entre autres.

Équipement de cuisine et de blanchisserie :
La villa est équipée d’une plaque de cuisson, d’un four, d’une hotte aspirante, d’un lave-linge, d’un lave-linge, d’un sèche-linge, d’un réfrigérateur combiné, d’un coffre vertical, le tout de la marque SMEG.

Zone :
Quartier principalement résidentiel de villas avec de nombreux espaces verts.

Commerce et services :
Le parc d’Oeiras est à 5 minutes où vous trouverez un supermarché et les magasins les plus variés, des cafés, des restaurants, des gymnases, des écoles, des collèges, des jardins d’enfants, des banques, des sites sportifs, entre autres. 

Accès :
L’A5 et l’Estrada de Paço de Arcos sont à 2 minutes.
CREL et A16 à 7 minutes.
Avenida Marginal et IC 19 à 15 minutes.

Transport :
Bus 1123 - Paço de Arcos (Estação Norte) - Porto Salvo (Lagoas Park)
Bus 1125 - Porto Salvo (Sociedade Musical) - Leião
Bus 1520 - Algés (Station) - Agualva Cacém (Station)Bus 1521
Bus 1523 - Agualva Cacém (Station) - Oeiras (Station)
Bus 1529 - Oeiras (Estação Norte) - Oeiras Golf Residence (Rotonde)
Bus 1530 - Oeiras (Estação Norte) - Queluz (4 Caminhos)
Bus 1601 - Amadora Este (Métro) – Carcavelos (Praia)
Bus 1610 - Paço de Arcos (Estação Norte) - Talaíde (Campo Futebol)
Bus 1611 - Paço de Arcos (Estação Norte) - Talaíde (Campo Futebol) via Vila Fria
Bus 1616 - Paço de Arcos (Estação Norte) – Taguspark (Rotunda SEF) via Bº Navegadores
Bus 1731 - Agualva Cacém (Estação) - Hôpital São Francisco Xavier
Bus 1733 - Marquês Pombal (Métro) - São Marcos (Rotonde) via Queijas Rotunda

Autres :
Possibilité d’être meublé, climatisation de conduit Samsung dans toutes les pièces, plancher flottant et panneaux solaires.

À propos de H Consulting :
H Consulting fournit des consultants immobiliers dédiés dans tous les processus d’achat et de vente de propriétés. 
Nous avons à notre disposition plusieurs outils où nous pouvons rechercher en permanence une propriété adaptée à vos besoins. 
Nous effectuons un suivi en face à face lors des visites et des négociations de toutes les propriétés.  
Nous avons les solutions financières les plus avantageuses pour votre prêt immobilier, où nous vous accompagnons tout au long du processus.
Nous offrons un soutien juridique à toutes les étapes des processus de vente et de location d’un bien immobilier, telles que le marquage et la réalisation du CPCV (Contrat à ordre d’achat et de vente), le marquage ou le soutien à l’exécution des actes publics d’achat et de vente. 
Nous partageons tous nos biens avec des agences immobilières disposant de la licence AMI 50/50. 
Pour plus d’informations, contactez-nous à l’adresse suivante : HConsulting.Pt
Nous avons hâte de planifier votre visite !
Type de propriété Maison
Typologie 4 Chambres
Objectif Vente
Etat Rénové
Prix 1.075.000 €
Année de construction 2022
Pays Portugal
Département Lisboa
Ville Oeiras
Lieu Porto Salvo
Zone Lisboa
Sandra Lourenço
Sandra Lourenço
Chamada para a rede móvel nacional
Je veux être contacté(e)
Date
Temps
Nom
Contact
Message
captcha
Code

Crédit à domicile et simulateur IMT

Simulateur de crédit
Simulateur d´IMT
Valeur de la propriété*
Montant du prêt*
Votre âge*
Durée du prêt *
Mensualité 0.00
Le montant de la mensualité présenté n´inclut pas l´assurance vie et l´assurance habitation.
Index 0.000%
TAEG 0.000%
Spread 0.000%
Durée 0 anos
TAN 0.000%
Simuler Les informations générées dans ce simulateur sont destinées à fournir des informations à caractère exclusivement indicatif à l´utilisateur, ne conférant aucune valeur contraignante ni à la collecte de données à des fins commerciales.
Localisation de la propriété*
Finalité*
Valeur de la propriété*
Valeurs complémentaires*
IMT 0.00
Droit de timbre (0,8%) 0.00
Valeurs complémentaires 0.00
Total à payer 0.00
Mais informações Simuler Les informations générées dans ce simulateur sont destinées à fournir des informations à caractère exclusivement indicatif à l´utilisateur, ne conférant aucune valeur contraignante ni à la collecte de données à des fins commerciales. Dados de Intermediação de Crédito - (Intermediário de Crédito nº )
Caractéristiques générales
Général
  •  
Pièces
Pièces Lieu Étage Murs Plafonds Commentaires
 
Environnement
  •  
Commodités
  •  
Domotique
  •  
Energies Renouvelables
  •  
Voir aussi
  • Maison 3 Chambre(s)+1
  • Maison 3 Chambre(s)+1
  • Maison 3 Chambre(s)+1
  • Maison 3 Chambre(s)+1
  • Maison 3 Chambre(s)+1
Baisse des prix
Exclusif
Opportunités
Maison 3 Chambre(s)+1
Maison 3 Chambre(s)+1
Oeiras, Porto Salvo
873.000 €
Maison 3 Chambre(s)+1
989.000 €-12%
873.000 €
Maison 3 Chambre(s)+1 Oeiras, Porto Salvo
3
4
1
217 m² A. Gross
189 m² A. Brut Privé
160 m² A. Utile
Contactar
  • Maison 3 Chambre(s)
  • Maison 3 Chambre(s)
  • Maison 3 Chambre(s)
  • Maison 3 Chambre(s)
  • Maison 3 Chambre(s)
Baisse des prix
Exclusif
Opportunités
Maison 3 Chambre(s)
Maison 3 Chambre(s)
Oeiras, Porto Salvo
873.000 €
Maison 3 Chambre(s)
989.000 €-12%
873.000 €
Maison 3 Chambre(s) Oeiras, Porto Salvo
3
3
1
217 m² A. Gross
189 m² A. Brut Privé
160 m² A. Utile
Contactar
Nous sommes à votre disposition pour vous aider Je veux être contacté(e)
Date
Temps
Nom
Contact
Message
captcha
Code
O que é a pesquisa responsável
Esta pesquisa permite obter resultados mais ajustados à sua disponibilidade financeira.