Bauland in Sobreda, Almada
Beschreibung:
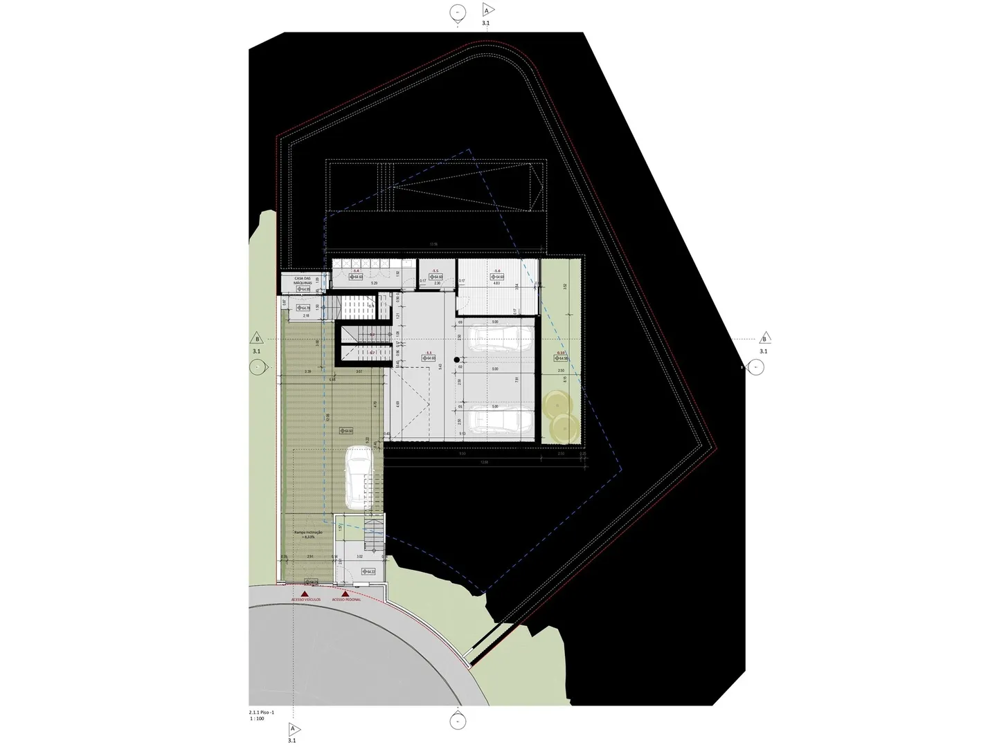
Grundstück für den Bau von 747 m² mit genehmigtem Projekt für ein freistehendes Haus der Typologie T4, wie folgt aufgeteilt:
Im 1. Stockwerk finden wir eine Garage für drei Autos, zwei Abstellräume, eine Waschmaschine und einen Maschinenraum.
Etage 0 Wohn-, Ess- und Küchenbereich im offenen Raum, Büro und Gästebad. Auf diesem Stockwerk finden wir außerdem eine Terrasse, eine Terrasse und einen Swimmingpool. 1. Stock besteht aus einer Master-Suite mit Umkleideraum, einer Suite, einem Schlafzimmer und einem komplett ausgestatteten Badezimmer zur Unterstützung des Schlafzimmers.
Handel und Dienstleistungen:
Das Gebiet ist sehr reich an Handel und Dienstleistungen, insbesondere Einkaufszentren Almada Forum 4 km entfernt, Supermärkten, Lebensmittelgeschäfte, Schulen, Hochschulen, Friseure, Fitnessstudios und andere, alles nur wenige Minuten von der Haustür entfernt.
Zone:
Extrem ruhige Gegend, Häuserstraßen steigen in Wertsteigerung.
Zugang:
A33 bei 3 Minuten
IC20 bei 2 Minuten
A2 4 Minuten
25 Abril Bridge bei 5 Minuten.
Transport:
Pragal Tramway und Metrostation 5 Minuten entfernt.
Bus: 3023
| Costa da Caparica (Terminal) | Orangenbaum |
3027
| Garcia de Orta Krankenhaus | Über uns |
3507
| Almada Forum (über Feijó / Südufer) | Marisol / Almada Forum (Variationen) |
3524
| Garcia de Orta Krankenhaus | Marisol (über Sobreda / Feijó) |
3704
| Charneca de Caparica | Lissabon (Marquês de Pombal) |
3716
| Charneca de Caparica | Lissabon (Sete Rios) |
3041
| Cacilhas (Terminal) | Caparica (Piloten) |
3504
| Garcia de Orta Krankenhaus | Viertel Quintinhas / Fundo Fomento (über Almada) |
3017
| Charneca de Caparica | Pragal (Bahnhof) |
3510
| Cacilhas (Terminal) | Lazarim (Piloten) |
3515
| Corroios (Bahnhof) | Lazarim (Piloten) |
Andere:
Fachrichtungen bereits genehmigt, Lizenzen zu bezahlen.
Über H Consulting:
H Consulting bietet engagierte Immobilienberater in allen Prozessen des Immobilienkaufs und -verkaufs.
Wir stehen Ihnen mehrere Werkzeuge zur Verfügung, mit denen wir dauerhaft nach einer Immobilie suchen können, die auf Ihre Bedürfnisse zugeschnitten ist.
Wir führen eine persönliche Überwachung bei Besichtigungen und Verhandlungen aller Immobilien durch.
Wir haben die vorteilhaftesten finanziellen Lösungen für Ihren Hauskredit und unterstützen Sie während des gesamten Prozesses.
Wir bieten rechtliche Unterstützung in allen Phasen des Verkaufs- und Mietverfahrens der Immobilie, wie das Markieren und Durchführen des CPCV (Promissory Contract of Purchase and Sale), das Zeichnen oder die Unterstützung der Ausführung öffentlicher Kauf- und Verkaufsurkunden.
Wir teilen alle unsere Immobilien mit Immobilienagenturen mit AMI 50/50-Lizenz.
Für weitere Informationen kontaktieren Sie uns unter: HConsulting.Pt
Wir freuen uns darauf, Ihren Besuch zu vereinbaren!